Listing Tools

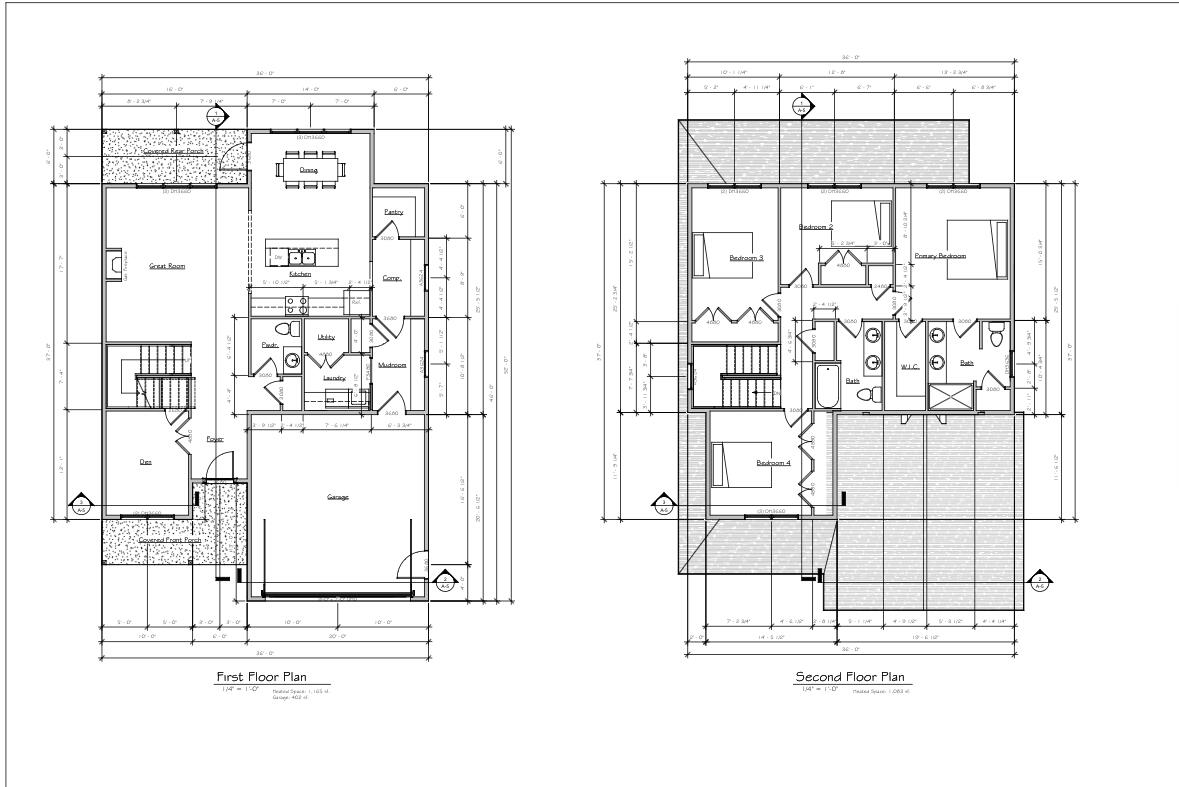
NEW CONSTRUCTION. Welcome to 3 Moxie Lane, a new construction opportunity in beautiful Biddeford. This prime lot offers your choice of two stunning Modern Farmhouse designs. Select your perfect plan & personalize your new home. Modern Farmhouse Open Concept Ranch-2,318 SF/ 4 bedrooms, 3 baths or Modern Farmhouse Open Concept Colonial-2,231 SF/ 4 bedrooms/ 2.5 baths. Both floor plans include Radiant slab heating, Two mini-split heat pump systems, Hybrid heat pump hot water heater, Quartz countertops throughout, Open concept kitchen & great room, Attached 2-car garage & covered front & rear porches. Quiet location on Moxie Lane. Close to beaches, downtown Biddeford & UNE. Estimated finished product 6 months from contract signing. Choose your plan today and personalize the finishes! Limited customization options available during early construction phases. TO BE BUILT. Construction starting soon.

Property Details of 3 Moxie Lane

Property Details

Interior Features

Exterior Features

Utilities and Appliances

Other Details

Map Location

Driving Directions

Listing data is derived in whole or in part from the Maine IDX & is for consumers' personal, non commercial use only. Dimensions are approximate and not guaranteed. All data should be independently verified. ©2025 Maine Real Estate Information System, Inc. All Rights Reserved. equal opportunity housing logo   Privacy Policy

Jaye Gorham participates in ©2025 Maine Listings Internet Data Exchange program, allowing us to display other Maine IDX Participants' listings. This website does not display complete listings. Certain listings of other real estate brokerage firms have been excluded. Mortgage figures are estimates. Check with your bank or proposed mortgage company for actual interest rates. This product uses the FRED® API but is not endorsed or certified by the Federal Reserve Bank of St. Louis.

Hi there! How can we help you?

Contact us using the form below or give us a call.

Send Us A Message:

I agree to receive marketing and customer service calls and text messages from Jaye Gorham. To opt out, you can reply 'stop' at any time or click the unsubscribe link in the emails. Consent is not a condition of purchase. Msg/data rates may apply. Msg frequency varies. Privacy Policy.

Do not fill in this field:

This site is protected by reCAPTCHA and the Google Privacy Policy and Terms of Service apply.